Ecco alcuni dei progetti a cui ci siamo dedicati per migliorare l'ambiente:

Impianto di disattivazione di materiale esplodente di piccolo calibro
Impianto di disattivazione di materiale esplodente di piccolo calibro
Progetto definitivo impianto di disattivazione materiale esplodente di piccolo calibro.
COMMITTENTE: Ecologia Soluzione Ambiente spa
PROGETTISTI:
- EnviCare Srl – Empoli (FI);
- KA Safe Engineering Srl – Madrid (E);
- CPR INGEGNERIA – Novellara (RE);
- AGENZIA BALISTICA ITALIANA – Follo (SP).
ANNO DI SVOLGIMENTO: 2021
INCARICO
Redazione del Progetto Definitivo relativo ad un nuovo layout impiantistico, in sostituzione dell’impianto attualmente in uso, in dismissione.
Il progetto redatto ha perseguito inoltre l’obiettivo di risolvere le criticità emerse nell’uso del precedente impianto, facendo tesoro dell’esperienza pregressa e del know how del team di progettazione per trovare soluzioni mirate.
IMPORTO DEI LAVORI
Riservato.
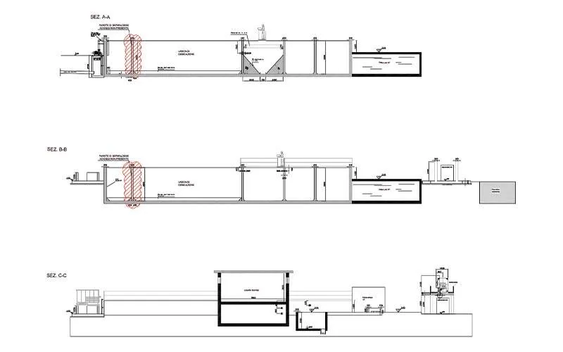
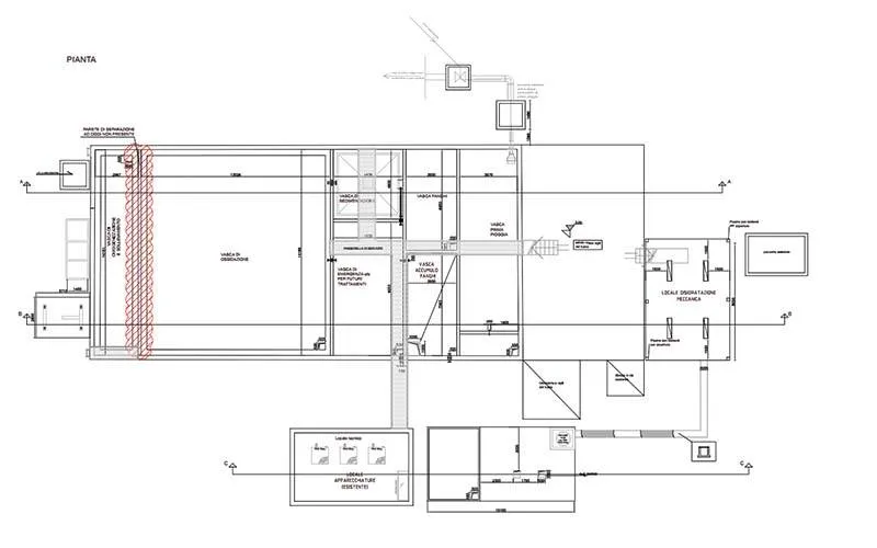
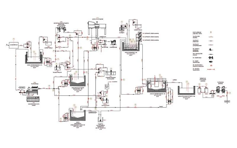
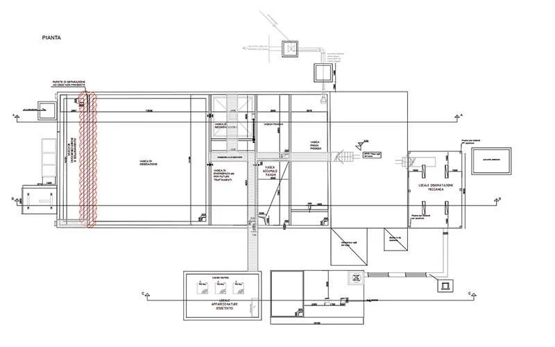
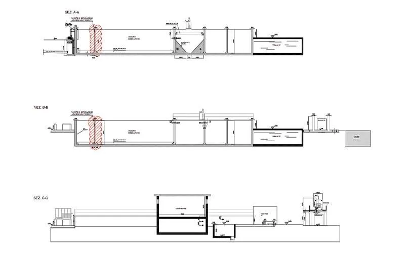
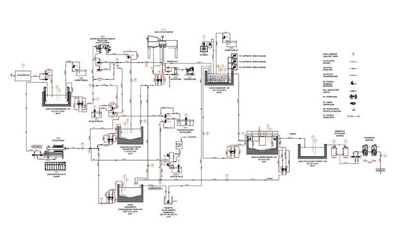
Impianto di depurazione a piè di fabbrica
Impianto di depurazione a piè di fabbrica
Progetto definitivo ed esecutivo di revampimg dell’impianto di depurazione a servizio di un impianto di produzione biodiesel.
COMMITTENTE: ILSAP srl – Latina
PROGETTISTI:
- EnviCare Srl
ANNO SVOLGIMENTO: 2021
INCARICO
Lo scopo del progetto è quello di riattivare l’impianto di depurazione a piè di fabbrica, finalizzato a conseguire un livello di trattamento sufficiente a garantire il rilascio di un refluo affinato nella fogna-tura consortile nel rispetto dei limiti qualitativi previsti dalla normativa vigente. Il progetto prevede l’inserimento di nuove opere elettromeccaniche dedicate al pretrattamento del refluo, in sostituzione ed integrazione a quelle esistenti, in modo da garantire la separazione e l’allontanamento degli oli e grassi contenuti, migliorando così l’efficienza di trattamento del comparto biologico.
IMPORTO LAVORI: 759.761,25 €
Progetto definitivo messa in sicurezza permanente
Progetto definitivo messa in sicurezza permanente
Progetto definitivo messa in sicurezza permanente ex-discarica.
PROGETTISTI:
- EnviCare Srl
- Subsoil geologi associati
ANNO DI SVOLGIMENTO: 2021
INCARICO
La discarica utilizza una vecchia cava d’argilla in cui sono stati conferiti rifiuti solidi urbani e speciali fino al totale riempimento della cavità. Tra il 1995 e il 1996 l’area è stata oggetto di intervento di cinturazione perimetrale mediante setto in cemento bentonitico per il confinamento della discarica.
Successive indagini di monitoraggio post-chiusura dei piezometri collocati nei pressi dell’intera area della discarica hanno evidenziato anomalie in alcuni di essi, per cui la discarica esaurita in oggetto è stata riconosciuta come sito da bonificare dal Piano Regionale di Bonifica dei siti inquinati ed è stata inserita tra i siti oggetto di approfondimento con bonifica a breve termine.
Importo dei lavori: 1.299.972,69
Impianto fotovoltaico con potenzialità inferiore a 1 MWp
Impianto fotovoltaico con potenzialità inferiore a 1 MWp
Progetto esecutivo di un impianto fotovoltaico con potenzialità inferiore a 1 MWp.
COMMITTENTE: Belvedere spa
PROGETTISTI:
- EnviCare Srl
ANNO SVOLGIMENTO: 2024
INCARICO
La società EnviCare Srl ha ricevuto incarico dalla società Belvedere S.p.A. per la progettazione esecutiva di un impianto di produzione di energia elettrica da fonte fotovoltaica di potenza pari a 952,2 kWp, da realizzarsi nell’area P.I.P. (Piano Insediamenti Produttivi) del Comune di Peccioli (PI) nelle vicinanze della Strada Provinciale della Fila.
IMPORTO LAVORI:
848.740,00 € di cui 10.000,00 € per oneri sicurezza (Determinazione n° 256 del 12/05/2025)
Progetto esecutivo di una nuova sezione di impianto e contestuale riduzione di potenza dell’impianto fotovoltaico “Ettaro di Cielo” ubicato in località La Fila nel Comune di Peccioli
Progetto esecutivo di una nuova sezione di impianto e contestuale riduzione di potenza dell’impianto fotovoltaico “Ettaro di Cielo” ubicato in località La Fila nel Comune di Peccioli (PI)
COMMITTENTE: Belvedere spa
PROGETTISTI:
- EnviCare Srl
ANNO DI SVOLGIMENTO: 2025
INCARICO
La società EnviCare Srl ha ricevuto incarico dalla Belvedere S.p.A. per la progettazione esecutiva finalizzata alla realizzazione di una nuova sezione di impianto e contestuale riduzione di potenza dell’impianto fotovoltaico “Ettaro di Cielo” ubicato nel Comune di Peccioli (PI).
Importo dei lavori:
1.727.400,00 € di cui 10.000,00 € per oneri sicurezza
Contattaci
Per richiedere un preventivo e informazioni sui nostri servizi compila il form con i tuoi dati e sarai ricontattato il prima possibile.




























